Home
Properties
Payments and Projects
Contact
en
English
Magyar
Home
Properties
Payments and Projects
Contact
en
English
Magyar
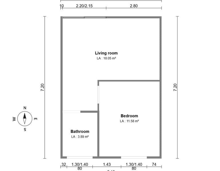
Cozy Apartment
38-42m²
Bedroom details
Living & Kitchen details
Bathroom
The view from balcony.........